NOR-FAB Tiny Home - 2 bed 1 Bath
CB-1442
Property Description
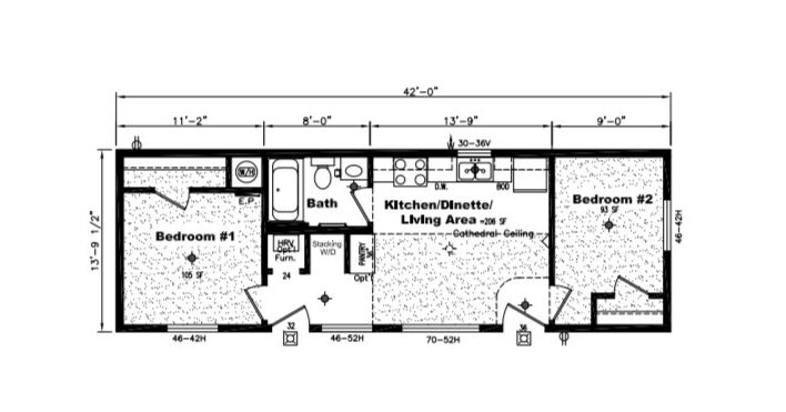
NOR-FAB – CB 1442 Tiny Home14' x 42' | 588 Sq. Ft.
2 Bedrooms | 1 Bathroom | Open-Concept Living
The 1442 Tiny Home is a compact, all-season modular home built to Ontario CSA A277 code. With 588 sq. ft. of thoughtfully designed living space, this model offers 2 bedrooms, 1 full bathroom, and a bright open-concept kitchen and living area, making it an excellent option for first-time homeowners, downsizers, or as a secondary residence.
The home comes fully finished throughout, featuring VOG wall paneling and linoleum flooring. The kitchen includes finished cabinetry, countertops, and a full appliance package consisting of a fridge, stove, oven, range hood, and dishwasher. The bathroom is equipped with a full tub/shower combination, and the layout accommodates a stacked washer and dryer.
Designed for year-round comfort and efficiency, the 1442 Tiny Home features R-60 ceiling insulation, R-30 wall insulation, dual-pane windows, and an electric forced-air furnace. Additional standard features include a 40-gallon electric water heater, HRV system, smoke and CO₂ combo alarms, exterior GFCI outlet, and 36” and 32” exterior entrance doors.
Proudly built in Canada, the 1442 Tiny Home delivers durability, efficiency, and modern convenience in a compact, move-in-ready design.
For more details, contact us today!












